Studio NonStop

ALTA SHOPPING CENTRE


BOSNIAN KNOT
CLIENT: Triland Development doo Sarajevo
LOCATION: Sarajevo, Marijin dvor
SIZE: 21.600,00m2
TYPE: Competition, 1st Prize
STATUS: Completed 2010.
DATE: 2005 – 2010
PROGRAM: Shopping, Parking
CONTEXT: Shopping center Alta is located in the Marijin dvor city center area accross Parliament and Government buildings of B&H;, on the one of the most important crossings in the city center with very intensive vehichle and pedestrian traffic.
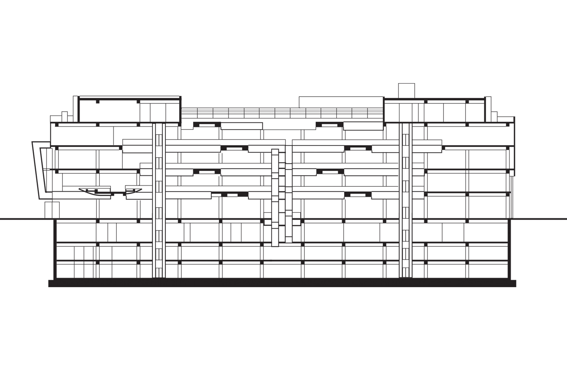
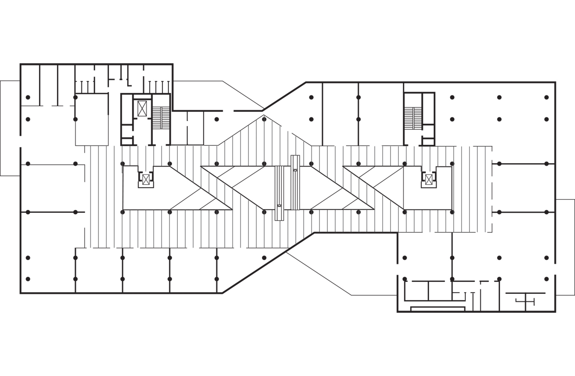
CONCEPT: Building is designed as continous folding pedestrian shopping street shaping a king of 3D urban knot developed on four overground levels with galeries around central void area.
CONSTRUCTION COSTS: 22,4MEUR